Не упусти свой шанс! Последние акции от застройщиков  ▼

Продается 2-комнатная квартира, Марьиной Рощи 4-я ул., 12К3

30 000 000 Р

Марьиной Рощи 4-я ул.12К3

Дата публикации: 22 октября 2025

Дата обновления: 23 октября 2025

Телефон: 
Показать телефон

+7 (903) 591-21-23

Агентство:  Upright Estate

Название: ЖК "Mod"

От застройщика: 2 квартир в продаже

Этаж: 18 / 55

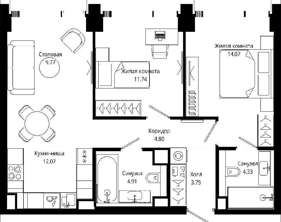
Общая: 65 м2

Жилая: 36 м2

Кухня: 12 м2

Комнаты: не указано

Балкон/лоджия: не указано

Лифт: есть лифт

Окна: окна на улицу

Санузел: совмещенный

Мусоропровод: не указано

Состояние квартиры: первичная отделка

Тип дома: монолитный

Год постройки: 2025

Территория: не указано

Парковка: не указано

Статус сделки: продажа

Сделка: прямая продажа

Собственность: не указано

Основание права собственности: не указано

Описание

Видовая квартира с предчистовой отделкой mr base и идеальной планировкой для семейной жизни:
кухня-гостиная, две изолированные комнаты, два санузла, панорамные окна и высокие потолки.
В премиальном жилом комплексе MOD в сердце Москвы.

Важные моменты- в квартире современные системы кондиционирования,
система Умный дом, система очистки воды до уровня питьевой, современная система пожаротушения и оповещения, повышенная система звуко-и шумоизоляции.

Закрытая территория, круглосуточное видеонаблюдение, продуманное благоустройство, эксплуатируемые кровли стилобата, многофункциональный образовательный центр с детским садом создают приватное пространство для тихой семейной жизни, а городская площадь с фонтанами, ресторан, супермаркет, коммерческая инфраструктура на первых этажах привносят созвучную с ритмом города динамику.
Двухуровневый подземный паркинг.
Комплекс расположен в старом Московском районе Марьина Роща, с превосходной инфраструктурой, закрытой территорией и стильной архитектурой.

Рядом с MOD расположены Фестивальный и Екатерининский парки, камерные Гончаровский парк и Яблоневый сад, грандиозные ВДНХ, Ботанический сад и парк "Сокольники"

Транспортная доступность:
5 минут пешком до станции метро "Марьина Роща"
3 минуты до ТТК
15 минут до Цветного бульвара

Один собственник. Переуступка.

Квартира на карте

ПанорамыКарта
Спецпредложения
Добавить объявление